Kopfzeile

Tolle Doppelhaushälfte in Roxheim zur Miete mit Garten

Haus zur Miete in 55595 Roxheim / Objektnummer: IT951

Haus zur Miete in 55595 Roxheim 1.100,00 €

5 Zimmer

1 Badezimmer

105 m² Wohnfläche

215 m² Grundfläche

SchlafzimmerBadezimmerToilettenZentralheizung
Frei ab 01.01.2026
Doppelhaushälfte mit Wärmepumpensystem, die Böden sind gefließt bzw. in Vinyl gehalten . Im EG gibt es ein üppiges, großes Wohnzimmer mit offenem Eß- und Küchenbereich sowie Gäste-WC . Für eine Einbauküche sorgt der Mieter. Eine Außenterrasse von 10m² läd zum Relaxen ein.
In das OG gelangen Sie über eine großzügige Treppe zu den 3 Schlafzimmern und ein attraktives Tageslichtbad mit Wanne und barrierefreier Dusche.
Für die Wärme- und Warmwasserversorgung ist ein Wärmepumpe vorhanden. Eine Garage und Außenstellplatz ist auch dazu.

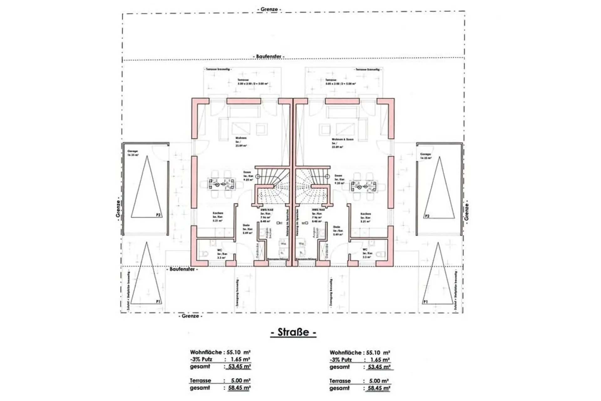
Die Aufteilung der Immobilie:
EG:
-Wohnen: 23,89m²
-Essen: 9,25m²
-Kochen: 5,21m²
-Gäste-WC: 3,30m²
-HAR: 7,96m²
-Terrasse: 10,00m²
OG:
-Schlafen1: 18,87m²
-Kind1: 11,32m²
-Kind2: 11,34m²
-Bad: 7,34m²
-Flur1: 3,71m²
Die Wohnfläche beträgt ca.105m² . Die Grundstücksgröße ist ca. 215m²
Kaltmiete: 1.100,-€ , Garage: 50,-€, Nebenkosten:150,-€ (ohne Strom/Heizung/Telefon/Wasser),Haustiere sind nicht erlaubt .
Kaution: 2.200,-€ (2MM)
Energiebedarfsausweis vom 17.04.2017
gültig bis : 04/2027
Energiebedarf: 21,80 kWh/(m².a)
CO2-Emissionen: 17kg/(m².a)
Energieklasse: A+
Befeuerung: Wärmepumpe/Strom
Baujahr Gebäude: 2017
Baujahr Heizung: 2017

Weitere Angebote finden Sie unter: www.troegerimmobilien.de

Lage und Verkehrsanbindung

Roxheim ist eine Ortsgemeinde im Landkreis Bad Kreuznach in Rheinland-Pfalz. Sie gehört der Verbandsgemeinde Rüdesheim an. Roxheim liegt im Naturpark Soonwald-Nahe nordwestlich von Bad Kreuznach. Durch den Ort fließt der Katzenbach, ein linker Zufluss des Ellerbachs. (Quelle:Wikipedia)

Lageplan

Inhalt wird geladen

Weitere Informationen

---
Verpassen Sie keine Immobilie mehr!
Unser komplettes Immobilienangebot finden Sie immer zuerst auf www.troegerimmobilien.de
Gerne helfen wir Ihnen auch beim Verkauf oder der Vermietung Ihrer Immobilie.
Infos: www.troegerimmobilien.de

Preise
Betriebskosten netto
150,00 €
Betriebskosten brutto
150,00 €
Preisinfos
Tolle Doppelhaushälfte in Roxheim zur Miete mit Garten
Kaution
2.200,00 €
Fakten
Objekttyp
Haus
Wohnfläche
105 m²
Grundfläche
215 m²
Toiletten
1
Baujahr
2017
Zustand
gepflegt
Status
verfügbar
Energieeffizienz
Energieausweisart
Energiebedarfsausweis
Endenergiebedarf
21,80 kWh/(m²a)
Energieeffizienzklasse
A+
Gebäudeart
wohnen
Baujahr laut Energieausweis
2017
Wesentliche Energieträger
Luftwp
Ausstellungsdatum
17.04.2017
Dr. Michael Troeger